Modern Farmhouse in Victoria Hills – 3BR + Bonus Rooms, Minutes from Biltmore Park & Lake Julian
Located in the highly desirable Victoria Hills Community, this newly built home offers over 3,160 sq. ft. of thoughtfully designed living space just 8 minutes from Biltmore Park Town Square and 11 minutes from Lake Julian.
The main floor features an open-concept great room, chef-style kitchen with walk-in pantry, and a spacious primary suite with dual walk-in closets and a spa-like bath. You’ll also find a home office, guest bedroom with full bath, laundry, and a 2-car garage with extra storage.
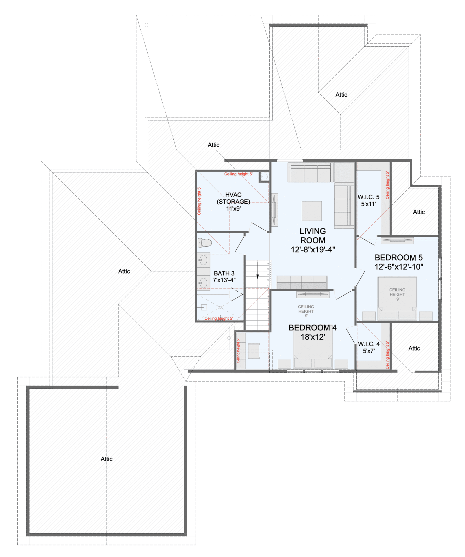
Upstairs includes two bonus rooms, a full bath, mini kitchenette, and an additional lounge — perfect for guests, teens, or multi-purpose use.
Enjoy covered front and rear porches, quality finishes, and a peaceful setting just minutes from shopping, dining, and outdoor recreation.




